В продаже уютный и тёплый двухэтажный дом

11750000.00 ₽
Дома
Сегодня 17:54
Продажа
Россия
Краснодарский край
Фиалковая
60 просмотров
ID: 29527
Опубликовано 3 часов назад Профилем Арина
11750000.00 ₽
В категории Дома
Продажа
Фиалковая, Краснодар, Краснодарский край, Россия
Построить маршрут →
60 смотрели
Отсканируй QR QR CODE
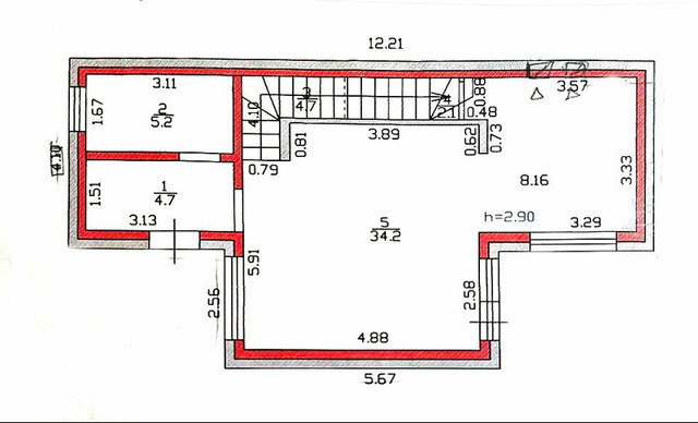
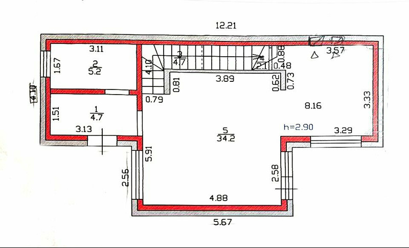
Предлагается к продаже капитальный двухэтажный жилой дом 2015 года постройки, с обновлённым ремонтом (2021 г.). Общая площадь - 112 м², жилая - 46 м². Участок - 2 сотки. - Кирпичные стены толщиной 35 см - Ленточный фундамент - Высота потолков 2,9 м - Утепление стен и кровли - Дом тёплый, с хорошей шумоизоляцией. Первый этаж: Кухня-гостиная 34,2 м², санузел 5,2 м² (душевая). По всему этажу - система тёплого пола. Второй этаж: Три изолированные спальни (20,2 / 13,2 / 12,6 м²), санузел 7,3 м² (ванна). Инженерные системы: - Центральное газоснабжение - Электричество - 10 кВт - Скважина - 35 м - Септик - 8 м³ - Биметаллические радиаторы - Интернет. Участок: Фасад 21 м, кирпичный забор. Двор полностью забетонирован, организовано освещение. Парковочное место. Плодовые насаждения. Инфраструктура: В шаговой доступности магазины, аптеки, поликлиника №8, детские и спортивные площадки. До детского сада - 300 м, до школы - 1,8 км. Хорошая транспортная доступность, удобный выезд из города. Объект полностью готов к проживанию, дополнительных вложений не требует. Подходит для семьи, ценящей тишину и комфорт при близости городской инфраструктуры. Читать далее

Опубликовано: 2026-03-13

Состояние объекта
Вторичка
Тип предложения
Продажа
Вид объекта
Дом
Общая площадь
112 кв.м
Количество комнат
3 комнаты
Высота потолков, м
2.7
Площадь Участка (земли)
2 сот.
Статус участка
ИЖС

Описание

Отсканируй QR QR CODE
Предлагается к продаже капитальный двухэтажный жилой дом 2015 года постройки, с обновлённым ремонтом (2021 г.). Общая площадь - 112 м², жилая - 46 м². Участок - 2 сотки. - Кирпичные стены толщиной 35 см - Ленточный фундамент - Высота потолков 2,9 м - Утепление стен и кровли - Дом тёплый, с хорошей шумоизоляцией. Первый этаж: Кухня-гостиная 34,2 м², санузел 5,2 м² (душевая). По всему этажу - система тёплого пола. Второй этаж: Три изолированные спальни (20,2 / 13,2 / 12,6 м²), санузел 7,3 м² (ванна). Инженерные системы: - Центральное газоснабжение - Электричество - 10 кВт - Скважина - 35 м - Септик - 8 м³ - Биметаллические радиаторы - Интернет. Участок: Фасад 21 м, кирпичный забор. Двор полностью забетонирован, организовано освещение. Парковочное место. Плодовые насаждения. Инфраструктура: В шаговой доступности магазины, аптеки, поликлиника №8, детские и спортивные площадки. До детского сада - 300 м, до школы - 1,8 км. Хорошая транспортная доступность, удобный выезд из города. Объект полностью готов к проживанию, дополнительных вложений не требует. Подходит для семьи, ценящей тишину и комфорт при близости городской инфраструктуры.

Познакомься с продавцом

Арина
2 активных объявления
Частное лицо
Последний онлайн 3 часов назад
Зарегистрирован: 3 Месяца назад

Комментарии (0)

Комментариев пока нет
Последний онлайн 3 часов назад
Сообщение
Ты профессиональный продавец? Создай аккаунт
Расположение по умолчанию